Ξεκινάει το έργο: “ΑΝΑΠΛΑΣΗ ΕΜΠΟΡΙΚΟΥ ΚΕΝΤΡΟΥ Ν. ΜΟΥΔΑΝΙΩΝ”
- Published in Χαλκιδική
Την Παρασκευή 22 Ιουνίου 2018 υπογράφηκε μεταξύ του Δημάρχου Νέας Προποντίδας, Εμμανουήλ Καρρά και του εκπροσώπου της αναδόχου εταιρείας «AS build ΑΤΕ», η σύμβαση για την κατασκευή του έργου: «ΑΝΑΠΛΑΣΗ ΕΜΠΟΡΙΚΟΥ ΚΕΝΤΡΟΥ Ν. ΜΟΥΔΑΝΙΩΝ».
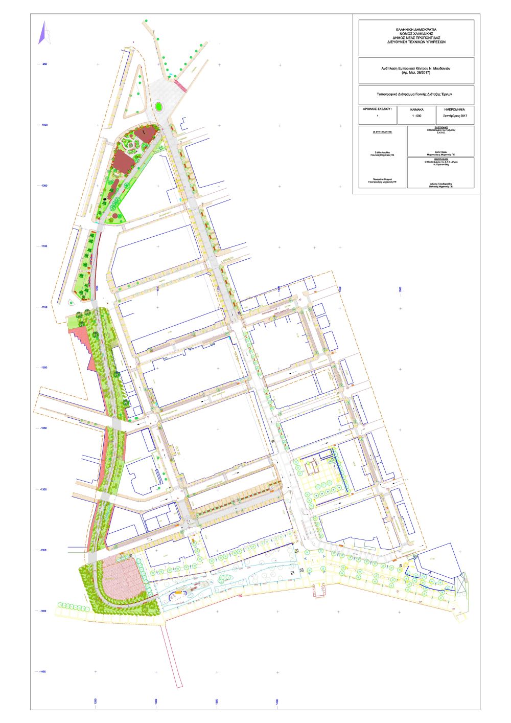
Το έργο, αρχικού προϋπολογισμού 4.400.000,00€, έχει προθεσμία κατασκευής δεκαοκτώ (18) μήνες και αφορά στην ανάπλαση του εμπορικού Κέντρου των Ν. Μουδανιών, με στόχο τη δημιουργία ενός οργανωμένου και αναβαθμισμένου αστικού περιβάλλοντος με την ταυτόχρονη δημιουργία υψηλής ποιότητας υποδομές.
Βασική επιδίωξη αποτελεί η διαμόρφωση ενός ενιαίου σώματος υπαιθρίων χώρων που οργανικά θα αποτελεί τον κορμό των κοινωνικών δρώμενων. Στόχος είναι να αποδοθεί στον αστικό ιστό μια αλληλουχία χωρικών ενοτήτων, οι οποίες θα αρθρώνουν ένα αδιάσπαστο σύνολο, αδιαίρετο και οργανωμένο σύνολο.
Τα προβλεπόμενα έργα οριοθετούνται νότια από το ύψος περίπου του θαλάσσιου μετώπου του οικισμού των Ν. Μουδανιών, δυτικά από τις οδούς Ηλιοπούλου και Φωτιάδου και ανατολικά από τις οδούς Τζαβούρα, Ελιγμών και Μεγ. Αλεξάνδρου. Από την ανάπλαση - αναδιαμόρφωση των ανοικτών χώρων της προαναφερθείσας περιοχής, εξαιρείται η οδός Τζαβούρα καθώς και η κεντρική πλατεία των Ν. Μουδανιών, όπου έχουν γίνει ήδη, από παλαιότερη εργολαβία, έργα ανάπλασης. Προβλέπεται όμως η αντικατάσταση στοιχείων αστικού εξοπλισμού.
Η ανάπλαση θα πραγματοποιηθεί με αρχιτεκτονική και φυτοτεχνική παρέμβαση. Συνοπτικά, τα επιμέρους έργα που πρόκειται να κατασκευαστούν αφορούν:
- Την αναδιάταξη - ανακατασκευή των πεζοδρομίων με νέες χαράξεις, δαπεδοστρώσεις, ράμπες για ΑΜΕΑ, τοποθέτηση προστατευτικών κολόνων μικρού ύψους κλπ.
- Την πεζοδρόμηση της οδού Ηλιοπούλου από το ύψος του κλειστού γυμναστηρίου των Ν. Μουδανιών έως το θαλάσσιο μέτωπο περίπου, με ταυτόχρονη κατασκευή έργων πρασίνου εκατέρωθεν της οδού, με σκοπό την αποκατάσταση της απρόσκοπτης επικοινωνίας του αστικού ιστού με το θαλάσσιο μέτωπο, αποφεύγοντας τον κεντρικό ιστό των Ν. Μουδανιών, και ενισχύοντας τον πνεύμονα πρασίνου στη ζώνη εκατέρωθεν του πεζοδρόμου, δίνοντας μία ευχάριστη νότα πρασίνου εντός της δομημένης περιοχής.
- Τη διαμόρφωση χώρων αναψυχής - πάρκων. Ειδικότερα προβλέπεται η δημιουργία:
• Ενός χώρου αναψυχής πλησίον του κλειστού γυμναστηρίου και πιο συγκεκριμένα μεταξύ των οδών Φωτιάδου, Τζαβούρα και Ηλιοπούλου, με τη κατασκευή χώρων πρασίνου και λοιπών έργων ανάδειξης του αστικού περιβάλλοντος σε συνέχεια της νέας παιδικής χαράς που κατασκευάζεται.
- Την αποκατάσταση - ανακατασκευή των οδοστρωμάτων στην περιοχή μελέτης.
Πέραν των προαναφερθέντων, στο σύνολο της περιοχής μελέτης θα γίνουν δαπεδοστρώσεις, δεντροφυτεύσεις σημειακά, τοποθέτηση φωτιστικών ιστών και σωμάτων, καθιστικών, κάδων - δοχείων συλλογής μικροαπορριμμάτων, μεταλλικών μπαρών προστασίας πεζοδρομίου κλπ.
Αναλυτικότερα το έργο της ανάπλασης του εμπορικού κέντρων των Ν. Μουδανιών περιλαμβάνει:
- Την αποξήλωση όλων των κρασπέδων στην περιοχή.
- Τη διάνοιξη καναλιών αποχέτευσης όμβριων.
- Την αποξήλωση των υφιστάμενων δαπέδων και ασφαλτοτάπητα, όπου αυτό είναι απαραίτητο.
- Την τοποθέτηση νέων κρασπέδων σε νέες θέσεις που ορίζουν συνήθως επέκταση των υφισταμένων πεζοδρομίων.
- Τη σκυροδέτηση βάσεων για τα νέα δάπεδα.
- Τη σκυροδέτηση θεμελιώσεων καθώς και τοιχίων αντιστήριξης και ποικίλων κατασκευών (ράμπες, κλίμακες, προστατευτικά τοιχία μικρής κλίμακας, καθιστικοί πάγκοι, παρτέρια κλπ).
- Τις χωματουργικές εργασίες διαμόρφωσης των παρτεριών στο πάρκο του δυτικού παραλιακού μετώπου.
- Τις γενικές και ειδικές δαπεδοστρώσεις των πεζοδρομίων και των προβλεπόμενων οδοστρωμάτων.
- Την ασφαλτόστρωση οδοστρωμάτων.
- Την επένδυση μικρής κλίμακας τοίχων.
- Τη διαμόρφωση τυποποιημένων δενδροδόχων.
- Την τοποθέτηση επαρκών φωτιστικών ιστών και σωμάτων.
- Την αντικατάσταση των υφιστάμενων φωτιστικών σωμάτων του ανατολικού θαλάσσιου μετώπου και της ευρύτερης περιοχής, όπου κρίνεται απαραίτητο.
- Την τοποθέτηση στοιχείων αστικού εξοπλισμού (παγκάκια, κάδους - δοχεία απορριμμάτων, μεταλλικές μπάρες προστασίας πεζοδρομίων, κλπ) καθώς και τη διαμόρφωση ειδικών κατασκευών όπως:
• Ανακατασκευή του σιντριβανιού στην πλατεία Βασματζίδη.


Related items
-
Έναρξη λειτουργίας Μουσικού Γυμνασίου Νέας Προποντίδας, για το σχολικό έτος 2026-2027
-
Χαλκιδική: Δυσκολεύονται στην εύρεση προσωπικού οι περισσότερες επιχειρήσεις
-
Να προωθηθεί αίτημα ένταξης της Χαλκιδικής στον γαστρονομκό οδηγό Μισελέν πρότεινε η αρμόδια αντιπεριφερειάρχης
-
Αίτημα ένταξης της Χαλκιδικής στο Πρόγραμμα Μετεγκατάστασης του υπ. Κοινωνικής Συνοχής και Οικογένειας
-
Επιμελητήριο Χαλκιδικής: Επιμορφωτικό Πρόγραμμα για τον Σύγχρονο Επιχειρηματία Τουριστικών Καταλυμάτων στην Χαλκιδική












