Ανάπλαση Εμπορικού Κέντρου Ν. Μουδανιών
- Published in Χαλκιδική
Η διεξαγωγή του διαγωνισμού με τίτλο “Ανάπλαση Εμπορικού Κέντρου Ν. Μουδανιών” πραγματοποιήθηκε στις 11/12/2017, ημέρα Δευτέρα.
Ο συνολικός προϋπολογισμός του έργου φτάνει τα 4.400.000,00€, συμπεριλαμβανομένου Φ.Π.Α. 24%.
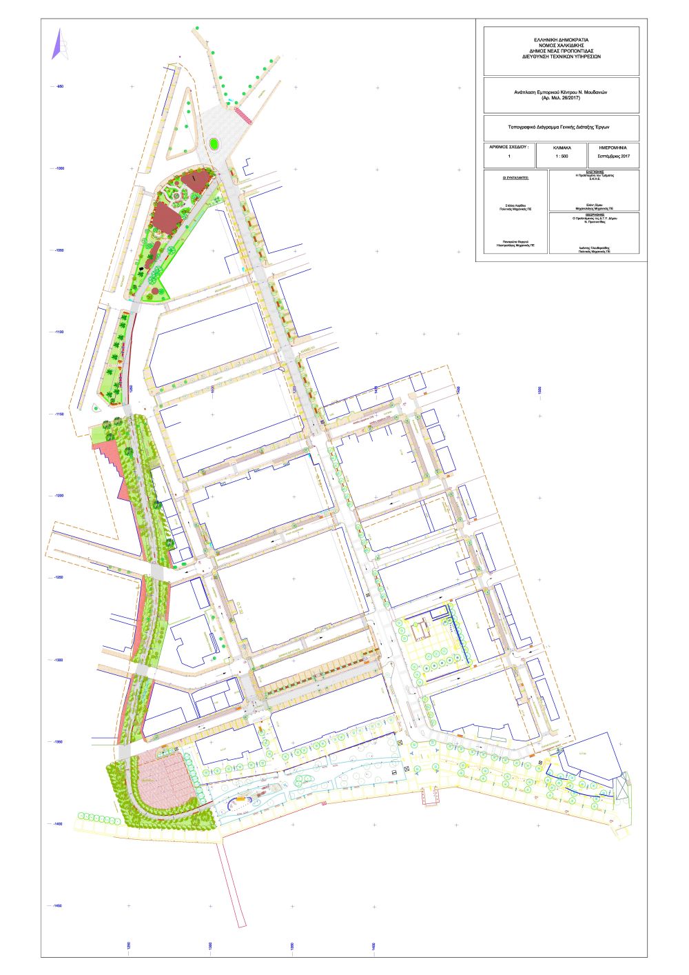
Σκοπός της μελέτης, αποτελεί η αισθητική, περιβαλλοντική, ποιοτική και λειτουργική αναβάθμιση του εμπορικού κέντρου των Ν. Μουδανιών, ώστε αυτό να αποτελέσει σημείο αναφοράς του αστικού ιστού και μέσο ενίσχυσης της ελκυστικότητας και επισκεψιμότητας της περιοχής.
Η ανάπλαση θα πραγματοποιηθεί με αρχιτεκτονική και φυτοτεχνική παρέμβαση.
Συνοπτικά, τα επιμέρους έργα που πρόκειται να κατασκευαστούν αφορούν:
1. Την αναδιάταξη - ανακατασκευή των πεζοδρομίων με νέες χαράξεις, δαπεδοστρώσεις, ράμπες για ΑΜΕΑ, τοποθέτηση προστατευτικών κολόνων μικρού ύψους κλπ.
2. Την πεζοδρόμηση της οδού Ηλιοπούλου από το ύψος του κλειστού γυμναστηρίου των Ν. Μουδανιών έως το θαλάσσιο μέτωπο περίπου, με ταυτόχρονη κατασκευή έργων πρασίνου εκατέρωθεν της οδού, με σκοπό την αποκατάσταση της απρόσκοπτης επικοινωνίας του αστικού ιστού με το θαλάσσιο μέτωπο, αποφεύγοντας τον κεντρικό ιστό των Ν. Μουδανιών, και ενισχύοντας τον πνεύμονα πρασίνου στη ζώνη εκατέρωθεν του πεζοδρόμου, δίνοντας μία ευχάριστη νότα πρασίνου εντός της δομημένης περιοχής.
3. Τη διαμόρφωση χώρων αναψυχής - πάρκων. Ειδικότερα προβλέπεται η δημιουργία: Ενός χώρου αναψυχής πλησίον του κλειστού γυμναστηρίου και πιο συγκεκριμένα μεταξύ των οδών Φωτιάδου, Τζαβούρα και Ηλιοπούλου, με τη κατασκευή χώρων πρασίνου και λοιπών έργων ανάδειξης του αστικού περιβάλλοντος σε συνέχεια της νέας παιδικής χαράς που κατασκευάζεται.
4. Την αποκατάσταση - ανακατασκευή των οδοστρωμάτων στην περιοχή μελέτης.
Πέραν των προαναφερθέντων, στο σύνολο της περιοχής μελέτης θα γίνουν δαπεδοστρώσεις, δεντροφυτεύσεις σημειακά, τοποθέτηση φωτιστικών ιστών και σωμάτων, παγκακίων, κάδος - δοχείο συλλογής μικροαπορριμμάτων, μεταλλικών μπαρών προστασίας πεζοδρομίου κλπ.


Related items
-
Έναρξη λειτουργίας Μουσικού Γυμνασίου Νέας Προποντίδας, για το σχολικό έτος 2026-2027
-
Χαλκιδική: Δυσκολεύονται στην εύρεση προσωπικού οι περισσότερες επιχειρήσεις
-
Να προωθηθεί αίτημα ένταξης της Χαλκιδικής στον γαστρονομκό οδηγό Μισελέν πρότεινε η αρμόδια αντιπεριφερειάρχης
-
Αίτημα ένταξης της Χαλκιδικής στο Πρόγραμμα Μετεγκατάστασης του υπ. Κοινωνικής Συνοχής και Οικογένειας
-
Επιμελητήριο Χαλκιδικής: Επιμορφωτικό Πρόγραμμα για τον Σύγχρονο Επιχειρηματία Τουριστικών Καταλυμάτων στην Χαλκιδική












